3-Bedroom Villa Beachfront on the Placencia Peninsula
This extraordinary Three-Bedroom Beach Villa is situated at the heart of Itz’Ana Resort & Residences. These refined multi-use Villas are available in a desirable location where success, taste, and elegance are reflected. This is an environment designed for relaxation and a beautifully lived life.
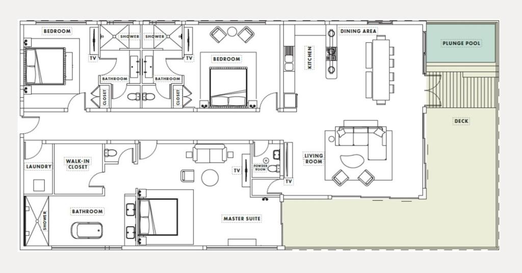
The Beachfront Three-Bedroom Villa offers approximately 4,550 sq. ft. total living space, featuring an expansive beachfront deck, plunge pools, a garden atrium, and a lap pool. Positioned directly on the Caribbean Sea, the combined villa is designed for those who appreciate beauty, comfort, and unique experiences. The layout includes three bedrooms, each with a private ensuite bathroom, plus an additional half bath for guests. The open-concept living space encompasses a full kitchen, dining area, lounge, and multiple indoor-outdoor living zones.
At the heart of the home is a lush garden atrium with a 22-foot lap pool, creating a private oasis of light, greenery, and tranquility. Outdoors, the beachfront decks and plunge pools provide an inviting space to enjoy the natural surroundings. The Villa balances expansive and intimate spaces, making it suitable for families, couples, or those who enjoy hosting.
This villa is turnkey and ideal for extended stays, seasonal living, or full-time ownership. Enjoy morning swims in serene pools, coffee on the deck as the sun rises, and evenings filled with the scent of salt air. Itz’Ana Resort and Residences is located on the Placencia Peninsula, offering tropical beauty and the luminous sea. The resort features stunning pools, gardens, high-end spa services, multiple dining venues, and exceptional culinary experiences.
With an on-site marina, it serves as a prime base for marine enthusiasts and anglers. The resort provides concierge services, personal butlers, private chefs, babysitting, and more, ensuring a fully passive experience for guests.
The lifestyle in Southern Belize includes world-class fishing, snorkeling, diving, guided tours, and access to ancient Mayan sites. Itz’Ana continues to elevate its offerings, providing unrivaled experiences in an exceptional location. This Three-Bedroom Beach Villa represents a unique opportunity in a high-end development.
Area Information for Seine Bight
Restaurants
20+
Schools
3
Hospitals
1
Information provided by Google. Deemed reliable but not guaranteed.





































