Beachfront Villa at Luxury Resort
This luxurious Villa is located at the heart of Itz’Ana Resort & Residences. These refined multi-use Villas reflect success, taste, and elegance, providing a space to unplug, restore, and live beautifully.
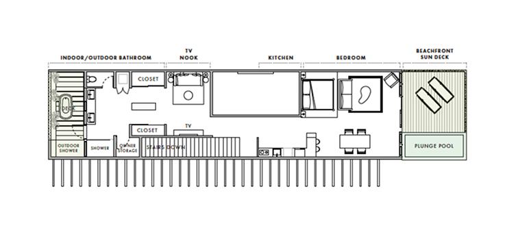
This beachfront one-bedroom Villa features 1,175 sq. ft. of interior space (1,600 sq. ft. total) including a sea front deck and plunge pool. Positioned directly on the Caribbean Sea, it is designed for those who appreciate beauty, comfort, and experience, embodying a lifestyle choice. The open and airy design allows for a seamless flow between indoor and outdoor spaces, with luxurious bedding, high-end furnishings, curated décor, and a soothing coastal palette.
The Villa includes a king bed for owners, a sleeper sofa for guests, open concept living with a modern kitchenette, and an outdoor bathtub and rainforest shower. It is ideal for quick getaways or year-round living.
Morning swims in the pool, coffee on the deck at sunrise, and evenings in warm trade winds create a serene atmosphere. Itz’Ana Resort and Residences is perfectly situated on the Placencia Peninsula, combining tropical lushness with the Caribbean Sea. The resort boasts an impressive pool, beautiful gardens, high-end spa services, and multiple dining spaces offering exceptional culinary experiences.
Additional amenities include a marina for marine enthusiasts, concierge services, personal butlers, private chefs, and babysitting. The lifestyle in Southern Belize is extraordinary, featuring world-class fishing, snorkeling, diving, and access to the Belize Barrier Reef, as well as guided tours and adventures.
Itz’Ana is in a phase of growth, continually enhancing the resort and its offerings for unrivaled experiences in the area. This Villa represents a unique opportunity to secure an asset within a high-end development.
Area Information for Seine Bight
Restaurants
20+
Schools
3
Hospitals
1
Information provided by Google. Deemed reliable but not guaranteed.











































































