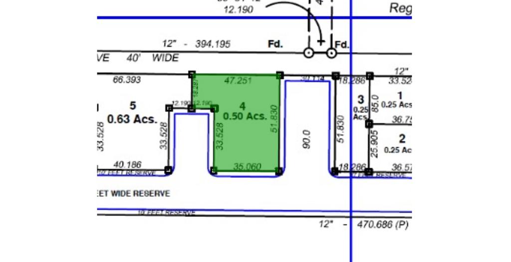
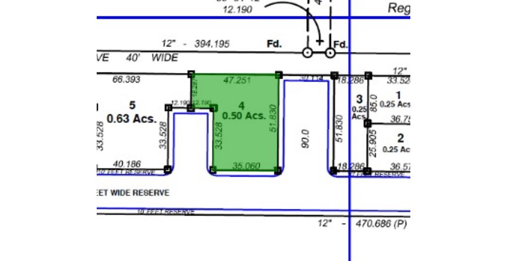
Boater’s Paradise: Prime 0.50 Acre Waterfront Lot In Placencia Harbor
This exclusive listing features a spectacular half-acre waterfront property nestled in the tranquil and protected waters of the Placencia Harbor. This is a rare opportunity to secure a personal slice of paradise, perfectly positioned just a stone’s throw from the vibrant heart of Placencia Village.
**The Dream for Every Mariner**
Imagine waking to the gentle lapping of water, stepping onto a custom-built deck, and gazing at a yacht moored at a private dock, ready for a day of adventure. This generous 0.50-acre lot offers expansive, direct frontage on the harbor, providing safe, deep-water anchorage for vessels of significant size. The protected nature of the harbor ensures your investment is shielded from the elements while offering effortless, immediate access to the turquoise waters of the Caribbean Sea. Whether your passion is world-class sport fishing, leisurely sailing to nearby cayes, or simply exploring the stunning Belizean coastline, this property serves as the ultimate home base.
**The Property & Potential**
This level, ready-to-build lot is a blank canvas awaiting the design of a dream waterfront estate. With a full half-acre of land, there is ample space for a luxurious main residence, a refreshing swimming pool, lush tropical gardens, and a guest casita, all without compromising magnificent, unobstructed water views. Gaze west across the harbor to enjoy breathtaking sunsets painting the sky over the Maya Mountains each evening. The property benefits from road access and the availability of all municipal utilities, making the building process straightforward and convenient.
**Location is Everything**
Enjoy the perfect balance of serene privacy and village convenience. While the property is a peaceful retreat, it is just a short golf cart ride away from the charm and energy of Placencia Village. Explore the famous Placencia Sidewalk, indulge in world-class restaurants, browse local artisan shops, stock up on groceries, or arrange tours with the best operators in Belize. The Placencia airstrip is also just minutes away, providing easy connections for you and your guests.
**Key Features at a Glance:**
– Size: Generous 0.50 Acre (approx. 2,023 m2)
– Waterfrontage: Expansive frontage on the protected Placencia Harbor
– Ideal For: Boaters, sailors, and fishermen seeking a premier home base
– Access: Deep-water access suitable for large vessels
– Potential: Perfect for a luxury home, private dock, pool, and guest house
– Views: Stunning, unobstructed sunset and mountain views over the water
– Location: Peaceful harbor setting, just minutes from Placencia Village amenities and the airport
– Utilities: Municipal water and power readily available
This is more than just a piece of land; it is the foundation for a lifestyle of freedom, adventure, and tranquility. Opportunities to own a parcel of this size and quality in such a prime harbor location are exceptionally rare.
Area Information for Placencia Village
Restaurants
20+
Schools
3
Hospitals
1
Information provided by Google. Deemed reliable but not guaranteed.























