Partially Built 2-Bedroom Home in Savannah Homes Subdivision, Hopkins
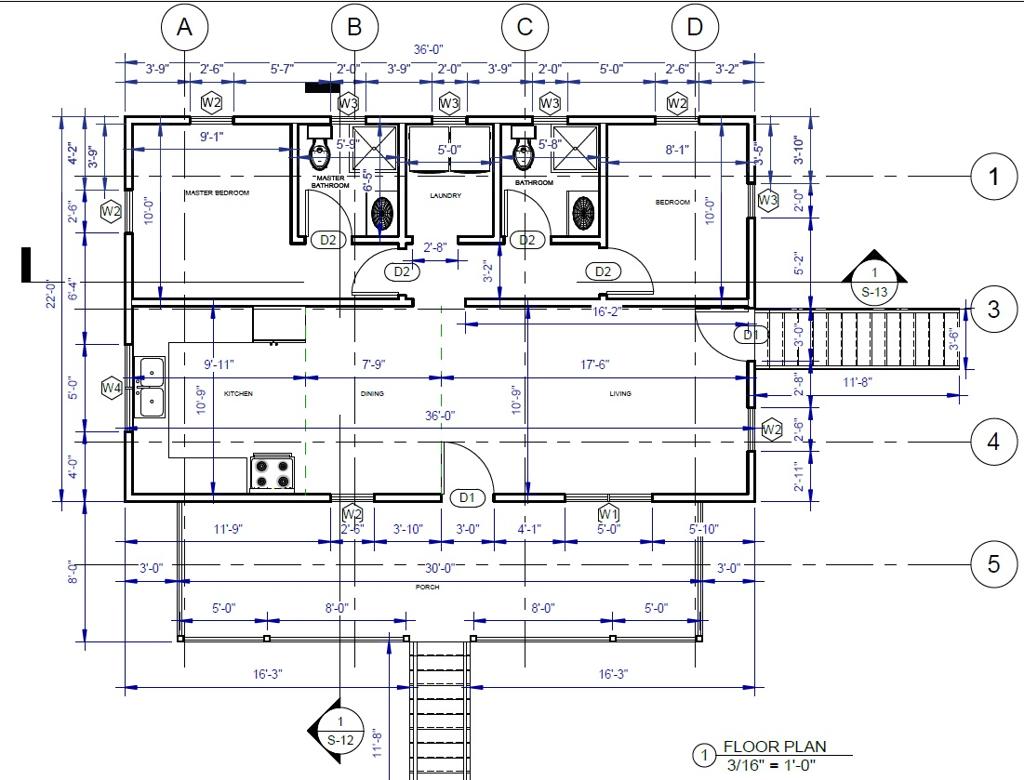
This is your chance to finish and customize a single-story 2-bedroom, 2-bath home in a desirable subdivision, directly across from a renowned beach resort. The current plans feature a thoughtfully designed 1,000 sq. ft. layout, ideal for a comfortable island-style retreat or investment property. Set on 0.26 acres, the lot is partially filled and positioned in a prime location just minutes from the vibrant village of Hopkins. Known as the cultural heart of Belize’s Garifuna community, Hopkins offers a warm and welcoming lifestyle—rich with music, drumming, traditional foods, and festivals that make this coastal village so unique. With the foundation already done and main house framed, this property is a fantastic opportunity for someone ready to add the finishing touches and create a custom dream home. Whether you’re seeking a full-time residence, vacation escape, or rental investment, this location places you near pristine beaches, great dining, and the heart of a thriving community. Highlights:
– 2-bedroom, 2-bath single-story design
– 1,000 sq. ft. floor plan
– 0.26-acre partially filled lot
– Across from a beach resort
– Close to Hopkins Village, the cultural hub of the Garifuna in Belize
– Great opportunity to finish and personalize
Area Information for Hopkins
Restaurants
20+
Schools
2
Doctors
1
Information provided by Google. Deemed reliable but not guaranteed.









